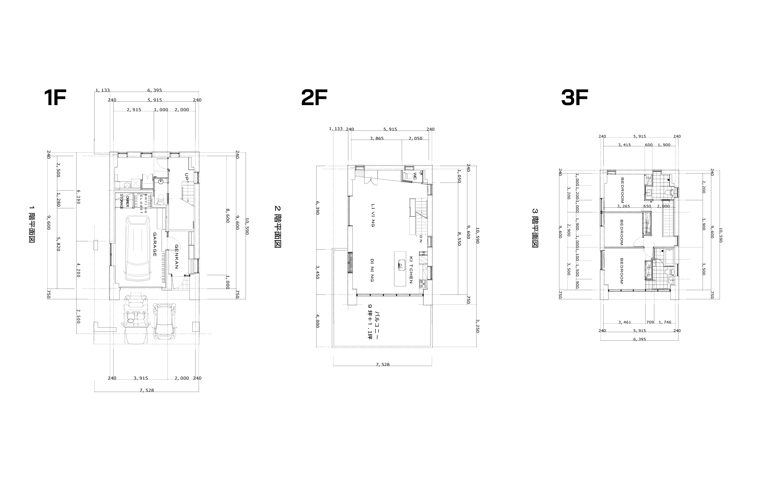
Yuuki Toride is a three-bedroom home is set across three levels in Lower Hirafu, placing restaurants, bars, and winter shuttle stops all within easy reach. It’s a location-driven property designed for those who want to be close to the action without sacrificing comfort or functionality.
The second floor is arranged as an open-plan living, dining, and kitchen space, with windows and a balcony opening toward views of Mt. Yotei. Light-filled and well-proportioned, this level functions as the heart of the house, equally suited to relaxed daily use or to gathering after a day on the mountain.
A covered garage with ski storage adds a genuine quality-of-life advantage, rounding out a home that balances layout, location, and everyday usability in one of Niseko’s most in-demand neighborhoods.
120
Floor m2
Land Sqm.
180
Land m2
3
Bedrooms
4
Bathrooms
Built in
2007
120
Floor m2
Land Sqm.
3
Bedrooms
4
Bathrooms
Built in
2007
Note: Boundary markings are approximate and may differ slightly from actual measurements.

For all enquiries, please complete the contact form below and our team will get back to you as soon as possible.
For all enquiries, please complete the contact form below and our team will get back to you as soon as possible.
A fully self-contained one-bedroom unit in the heart of Hirafu Village, Niseko.
1.0
Bedrooms
1.0
Bathrooms
Four-bedroom, three-story house in Lower Hirafu offering walkable access to dining, nightlife, and winter shuttles.
4.0
Bedrooms
3.0
Bathrooms